大卫
走进大卫
核心团队
文化理念
发展历程
资质证书
项目
文化建筑
市政工程
医院类
教育类
文保类
工业类
居住类
媒体
公司新闻
行业资讯
视频欣赏
荣誉
联系
简体中文
网站首页
大卫
走进大卫
核心团队
文化理念
发展历程
资质证书
项目
文化建筑
市政工程
医院类
教育类
文保类
工业类
居住类
媒体
公司新闻
行业资讯
视频欣赏
荣誉
联系
文化建筑
市政工程
医院类
教育类
文保类
工业类
居住类
中国两弹城
李庄旋螺殿缮治
成都金牛坝张大千旧居
长征·夹金山红军小道
长征·宝兴长偏桥栈道
宜宾流杯池石刻
海南省万安书院
自贡王家大院
宜宾李庄南华宫
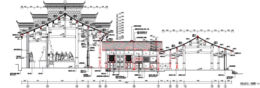
珙县北京寺
第1页/共2页
首页
1
2
尾页
抖音二维码
微信公众号
QQ群:
小红书二维码
大卫
走进大卫
核心团队
文化理念
发展历程
资质证书
项目
文化建筑
市政工程
医院类
教育类
文保类
工业类
居住类
媒体
公司新闻
行业资讯
视频欣赏
荣誉
联系
contact us
联系我们
(028)65296530
四川省成都市高新区天府二街138号蜀都中心3号楼6层
275010918@qq.com
四川省大卫建筑设计有限公司
备案号:
蜀ICP备19028654号
友情链接
测试1
测试2